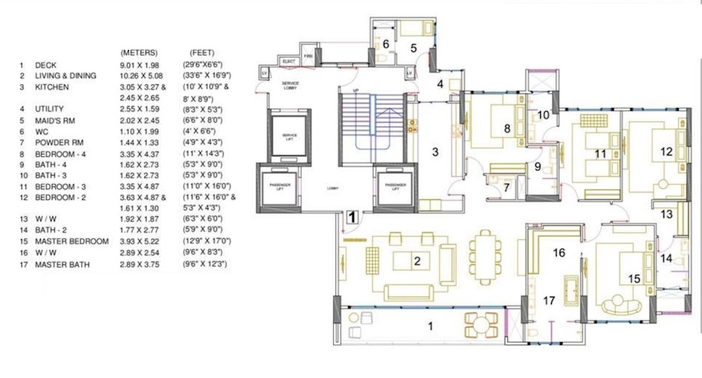
Rustomjee Elements 5 Bhk Floor Plan

The 3 acre layout ensconces 3 4 5 bedroom luxury residences with expansive sun kissed decks.
Rustomjee elements 5 bhk floor plan. Rustomjee elements is a universe of unexplored extravagance that blessings you a definitive extravagance incalculable little spaces to assist you with rediscovering a piece of you that was lost some place not far off to the corner office. It is located at andheri west in mumbai. Rustomjee elements offers 3 4 and 5 bhk extravagance homes with sweeping sun decks. The layout ensconces 3 4 5 bedroom luxury.
The avant garde concept designed by the award winning hong kong based firm james law and the seamless design is finely crafted by jimmy mistry makes this estate a poised to become the most elite gated community in the vicinity of juhu. Rustomjee elements is a world of unexplored opulence that gifts you the ultimate luxury multitudinous little spaces to help you rediscover a part of you that was lost somewhere down the road to the corner office. The residences in d and l wing will be ready for possessions in 2023 and in e and k wing will be ready in 2020 plus. Its vast estate is inflated across 120 acres with spacious open space and lavish 2bhk homes which host all comforts you will appreciate.
The avant garde concept designed by the award winning hong kong based firm james law cybertecture is poised to become the most elite gated community in the vicinity of juhu. Rustomjee elements project is registered on rera with following rera ids p51800005738 rustomjee elements wing sc p51800001382 rustomjee elements wing sg. Get full info of rustomjee elements juhu mumbai such as price list payment plan floor plan specifications location map and more. Rustomjee elements is a well designed residential project at juhu of mumbai by rustomjee group.
The 3 acre layout ensconces 3 4 5 bedroom luxury residences with expansive sun kissed decks. Rustomjee urbania is one of the most known and professionally designed township in thane. Welcome to rustomjee elements rustomjee elements presents a niche living experience in the heart of mumbai. Find rustomjee elements ready to move apartments flats in andheri west mumbai andheri dahisar.
Rustomjee elements is a world of unexplored opulence that gifts you the ultimate luxury multitudinous little spaces to help you rediscover a part of you that was lost somewhere down the road to the corner office. Rustomjee elements presents a niche living experience in the heart of mumbai. Rustomjee elements price list for 2018.